ГлавнаяКаталог Склад — Мирная ул., 3
Щеглов Игорь
Щеглов Игорь
Специалист
или оставьте ваш номер,
и я перезвоню в течение 5 минут
Нажимая на кнопку, вы даете своё согласие на обработку персональных данных и соглашаетесь с политикой конфиденциальности
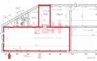
Сдаётся в аренду теплый склад 474,4 кв.м., с офисными помещениями площадью 75,94 кв.м. в комплексе производственно-складских помещений по адресу:
Самарская обл., Кировский р-н, ул. Мирная д.3.
От собственника, без комиссии.
Основные характеристики и преимущества помещения:
- располагается на территории производственной базы 2000 кв.м, покрытие- асфальт в промышленной зоне недалеко от пр-та Кирова;
- удобные подъездные пути (асфальт);
- база и подъездные пути очищаются от снега;
-с площадкой выгрузки/погрузки, на территории базы;
- размеры 25 м*11.52 м и 10,1*5,9 м;
- высота потолков 4,4 м;
- ворота 3,5м х 4,0 (в)м;
- полы бетон ;
- помещение отапливаемое;
- наличие водоснабжения с центральной магистрали;
- электрифицировано, мощность до 15 кВт (возможность увеличения);
- освещение по всей территории базы;
- отдельные ворота для въезда на базу, база огорожена (железобетонный забор);
- место для разгрузочно-погрузочных работ;
-офисные помещения состоят из трех кабинетов с хорошим ремонтом : 18,0 кв.м., 13,6 кв.м., 36,0 кв. м.

Стоимость аренды склада -400 руб./м.кв. +5% НДС, офиса -500 руб/м.кв. +5% НДС.

По всем вопросам можете обращаться к вашему персональному эксперту :
Щеглов Игорь
От собственника. Без комиссии.
Арт. 132218183
Расположение

Мирная ул., 3

Похожие объекты

Посмотреть другие объявления в этой категории