ГлавнаяКаталог Склад — Механиков ул., 5
Колеганов Андрей
Колеганов Андрей
Специалист
или оставьте ваш номер,
и я перезвоню в течение 5 минут
Нажимая на кнопку, вы даете своё согласие на обработку персональных данных и соглашаетесь с политикой конфиденциальности
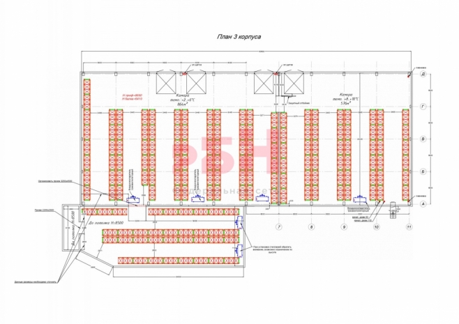
Аренда холодильник общая площадь 1472 м2
адрес: Самарская обл., Волжский р-н, пгт. Смышляевка, ул. Механиков.

Аренда складов -холодильников с температурным режимом от +5℃ до - 20 ℃ на территории складского комплекса с наличием хорошей инфраструктурой (склады, парковки, стоянки, бытовые помещения, офисы, столовая). Возможность аренды складов различной площади и различного температурного режима. Ввод в эксплуатацию 2024 год.
Характеристики :
Холодильник 1472 м2 , 4 дока для разгрузки;
- диапазон температур от - 5℃до + 5℃;
- высота потолков – 8,5 м;
Холодильник 342,7 м2 , 1 док для разгрузки;
- диапазон температур от - 5℃до + 5℃;
- высота потолков – 8,5 метров;
Возможно как объединение данных холодильников, так и раздельное использование.
Холодильник 664 м2 , тамбур, офис на 2 этаже;
- диапазон температур от - 5℃до -20℃;
- высота потолков – 6,8 м;
- 2 секционных ворот (2,40 × 2,80 м)
- 2 откатных ворот (2,20 × 2,80 м)

Возможна любая комбинация площадей.
- холодильное оборудование на базе Вitzеr и Сореlаnd;
- стены, потолок - сэндвич-панели 150мм;
- закрытая рампа для разгрузки, доклевеллеры, докшелтеры;
- диодное освещение камер и рампы, видеонаблюдение;
- направляющие колес;
- огороженная, охраняемая территория, место для парковки, стоянка большегрузного транспорта;
- доступ круглосуточный;
- офисные, бытовые помещения, помещения офис для охраны, кладовщиков или менеджеров;
- на территории расположен офисный центр, столовая, магазин;
- газовая котельная;
- комплекс расположен на въезде в Самару, хорошие подъездные пути, выезд на трассу Р-229 и трассу М-5 (въезд – выезд не доезжая до поста ДПС).

Стоимость аренды 1200 руб. /м2+ к/у + эл/эн.

Без комиссии для арендатора
Для просмотра помещения или уточнения информации Вы можете в любое время написать нам в чат или позвонить.
Напишите параметры требуемого помещения, с указанием способа контакта и мы вышлем Вам подходящие варианты.
-------------------------------------------------------
Колеганов Андрей
Регион Бизнес Недвижимость

Арт. 128978760
Расположение

Механиков ул., 5

Похожие объекты

Посмотреть другие объявления в этой категории