Колеганов Андрей
Колеганов Андрей
Специалист
или оставьте ваш номер,
и я перезвоню в течение 5 минут
Нажимая на кнопку, вы даете своё согласие на обработку персональных данных и соглашаетесь с политикой конфиденциальности
Аренда торговых помещений от м2
Адрес: Гранная улица, 1, посёлок Гранный, Новокуйбышевск, Самарская область
От Собственника без комиссии

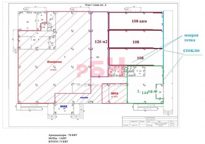
Аренда торговых помещений в новом одноэтажном торговом комплексе, первая линия ул. Гранная и Самарского шоссе, высокий автомобильный трафик, хорошая видимость с трассы в г Новокуйбышевск и п. Гранный.
Возможные варианты размещения представлены на схемах.

В комплексе есть якорные арендаторы «Пятерочка», «Фабрика Качества», «ВИТА». Приветствуются арендаторы сферы общественного питания, магазины стройматериалов, хозтоваров.
Но рассмотрим всех желающих.
- площадь свободных помещений в соответствии с представленной схемой ,секции по 108 м2 как объединенные, так и по отдельности;
- два выхода на парковку перед зданием;
- зона разгрузки с роллетными воротами;
- высота потолка 6 м;
- санузел, подсобные помещения;
- естественное освещение, панорамное остекление;
- возможность замены стеновых панелей на остекление с видом на парковку и Самарское шоссе;
- эл. мощность до 70 кВт;
- большая парковка перед зданием;
- удобный заезд с ул. Гранная;
В настоящий момент формируется пулл арендаторов, общая площадь не разгорожена. Есть возможность планировки под конкретные требования.

Стоимость аренды 1200-1600 руб/кв.м. + коммунальные услуги

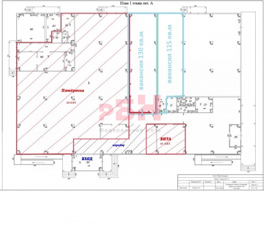
В соседнем здании, осталась одна свободная секция;
- секции выходят в общую входную группу с двумя выходами на парковку перед зданием;
- каждая секция имеет зону разгрузки с роллетными воротами, и площадкой достаточной для разгрузки фуры.

Без комиссии для покупателя
Для просмотра помещения или уточнения информации Вы можете в любое время написать нам в чат или позвонить.
Напишите параметры требуемого помещения, с указанием способа контакта и мы свяжемся с Вами
Колеганов Андрей
«Регион Бизнес Недвижимость»
Арт. 127882423
Расположение

Гранная ул., 1

Похожие объекты

Посмотреть другие объявления в этой категории