Колеганов Андрей
Колеганов Андрей
Специалист
или оставьте ваш номер,
и я перезвоню в течение 5 минут
Нажимая на кнопку, вы даете своё согласие на обработку персональных данных и соглашаетесь с политикой конфиденциальности
Аренда торговых помещений 108м2
Адрес: Гранная улица, 1, посёлок Гранный, Новокуйбышевск, Самарская область
От Собственника без комиссии

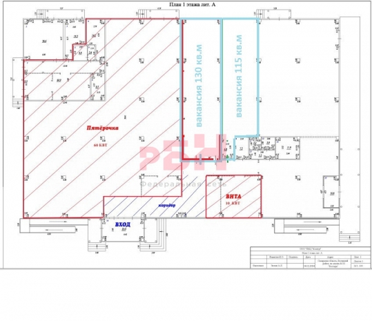
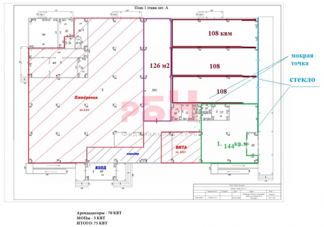
Аренда торговых помещений в новом одноэтажном торговом комплексе, первая линия ул. Гранная и Самарского шоссе, высокий автомобильный трафик, хорошая видимость с трассы в г Новокуйбышевск и п. Гранный. В комплексе есть якорные арендаторы «Пятерочка», «Фабрика Качества».
- 2 секции по 108 м2 (18м х 6 м ) и 1 секция 140м2, возможность аренды отдельными секциями или объединенно;
- секции выходят в общую входную группу с двумя выходами на парковку перед зданием;
- каждая секция имеет зону разгрузки с роллетными воротами, и площадкой достаточной для разгрузки фуры;
- высота потолка 5 м;
- санузел, подсобные помещения;
- естественное освещение, панорамное остекление;
- эл. мощность 10-20 кВт;
- большая парковка перед зданием;
- удобный заезд с ул. Гранная;
В настоящий момент формируется пулл арендаторов, общая площадь не разгорожена. Есть возможность планировки под конкретные требования.

Стоимость аренды 1500 руб/кв.м. + коммунальные услуги

В соседнем здании есть свободные площади.

Без комиссии для покупателя
Для просмотра помещения или уточнения информации Вы можете в любое время написать нам в чат или позвонить.
Напишите параметры требуемого помещения, с указанием способа контакта и мы свяжемся с Вами
Колеганов Андрей
«Регион Бизнес Недвижимость»

Арт. 127595773
Расположение

Гранная ул., 1

Похожие объекты

Посмотреть другие объявления в этой категории